Студия: RASEN design
Дизайнер: Дмитрий Дроздов
Визуализация: Евгения Акишина
Чертежи: Евгения Акишина
Расположение: г. Барнаул, Алтайский край
Объект: дом
Площадь: 213 м²/ 145 м²
Категория: архитектура
Год: 2023
Стадия: реализован
Задача
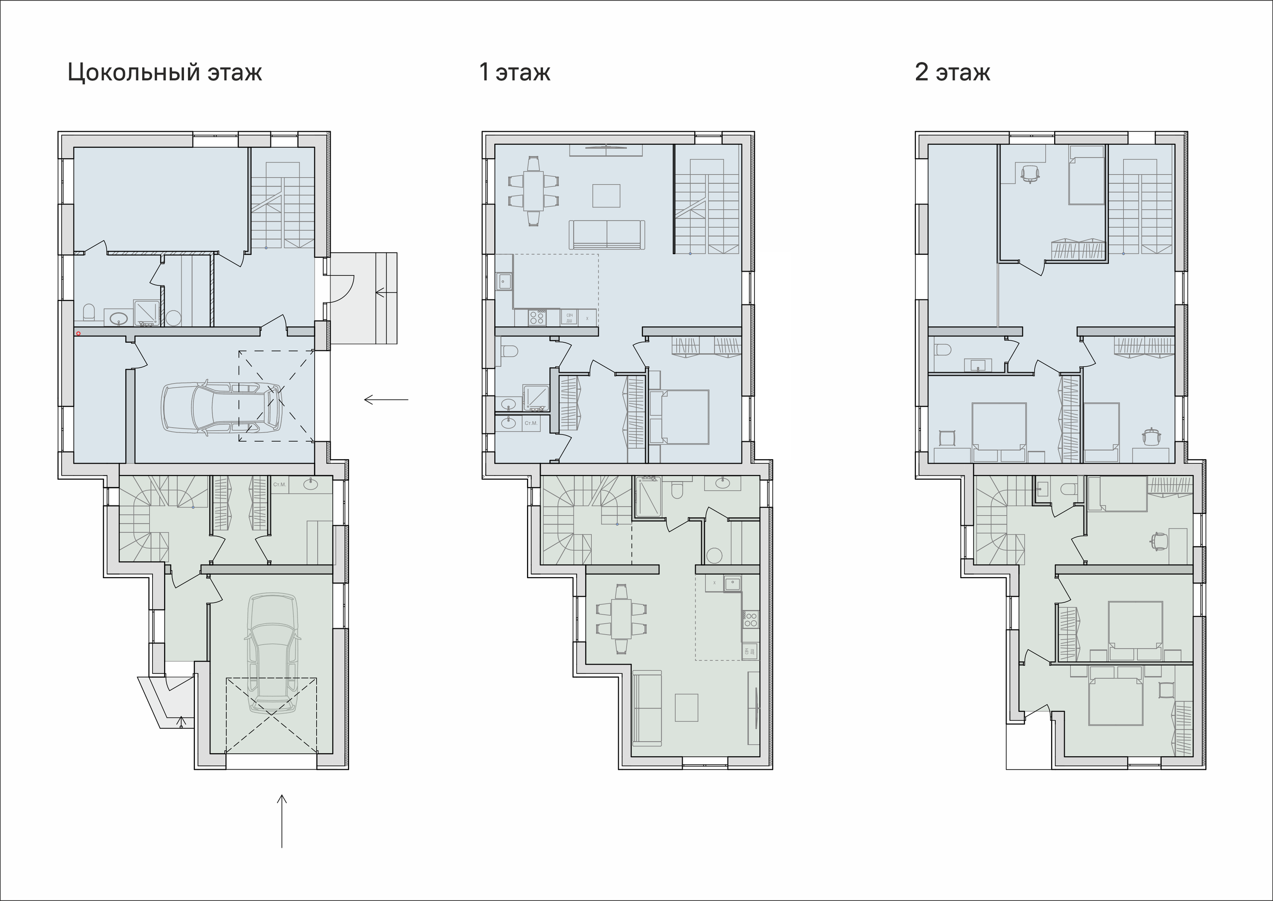
Участок 6 соток неправильной формы расположен на сложном рельефе. Необходимо разместить блокированный дом для двух семей общей площадью от 300 м². Каждый блок должен быть оборудован гаражом, отдельной котельной, сауной.
Описание проекта
В каждом блоке решено было разделить зоны по этажам. В цокольном этаже расположились гаражи и хозяйственные помещения. На первом этаже общие зоны кухни-гостиной. На третьем этаже спальни.
Позднее было решено изменить цветовое решение фасадов. Светлую штукатурку заменили на облицовочный кирпич.
Реализация. Фото — июнь 2023
Реализация. Фото — сентябрь 2023
Реализация. Фото — декабрь 2023. Фасады выполнены из сайдинга имитирующего кирпичную кладку.
Реализация. Фото — сентябрь 2024
























































