Студия: RASEN design
Дизайнер: Евгения Акишина, Дмитрий Дроздов
Визуализация: Евгения Акишина, Юлия Давыденко
Чертежи: Евгения Акишина, Юлия Давыденко
Расположение: с. Аскат, Республика Алтай
Объект: дом
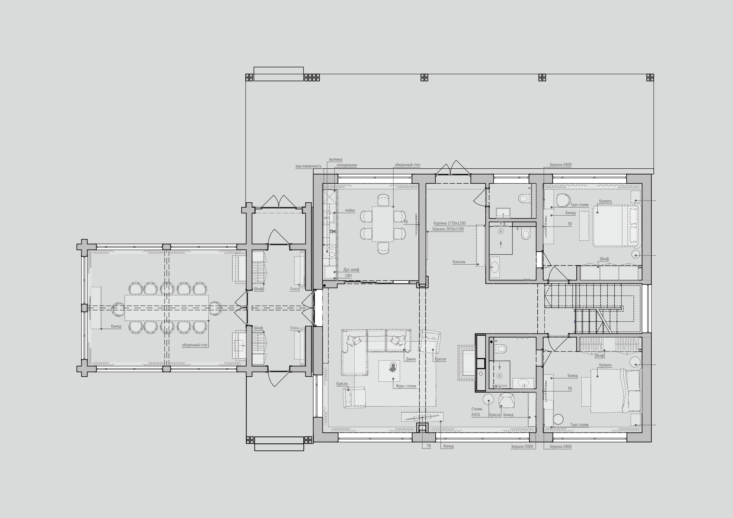
Площадь: 280 м²
Категория: интерьер
Год: 2024
Стадия: в реализации
Задача
Сделать интерьер с элементами горного шале и русской классики.
Связанные проекты
Мы спроектировали этот дом на существующем фундаменте. Эскизный проект и реализация — Shale Askat
Описание проекта
Большой загородный дом для семьи и приёма гостей. Важной характеристикой будущего интерьера были панорамные окна первого этажа. Вид на горы, сосновый лес и село — главный элемент этого интерьера. Нам оставалось только создать уютную атмосферу, что бы подчеркнуть окружающую природу в любое время года. В гостиной установлен настоящий камин с изразцами, именно он задал цветовую гамму первого этажа.
Что бы посмотреть изменения в планировке двигайте ползунок
1 этаж
← →
2 этаж
← →



















































































